Opis
Podnośnik 4-kolumnowy PO640 TITAN NortecPro
- Synchronizacja mechaniczna za pomocą stalowych lin
- Automatyczna blokada mechaniczna zwalniana pneumatycznie
- Zawór przeciążeniowy
- Podnośnik sterowany bezpiecznym napięciem 24V
- Produkt homologowany i certyfikowany zgodnie z europejskimi normami Dyrektywa EN1493: 2010
- Podnośnik przystosowany do obsługi geometrii, posiada wybrania pod obrotnice oraz płyty rozprężne
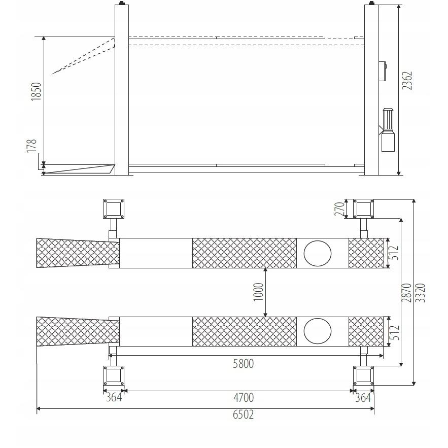
Dane techniczne:
- Udźwig: 6400kg
- Zasilanie sieć: 400V/50Hz
- Moc silnika: 2,2 kW
- Wysokość całkowita: 2362 mm
- Wysokość podnoszenia: 1850 mm
- Prześwit: 2880 mm
- Platformy: 512×5800 mm
- Poziom hałasu: < 70 dB (A)
- Waga: 1590kg
WYPOSAŻENIE STANDARDOWE
dźwignik osi 2,5T pompą pneumatyczną





Opinie
Na razie nie ma opinii o produkcie.